Overview
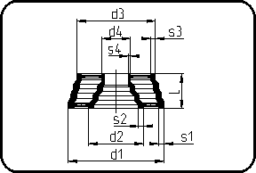
| Dimension | Code | Detail |
SDR1 |
SDR2 |
L mm |
s1 mm |
s2 mm |
s3 mm |
s4 mm |
d1 mm |
d2 mm |
d3 mm |
d4 mm |
Weight | ||||||||||||||||||||||
|---|---|---|---|---|---|---|---|---|---|---|---|---|---|---|---|---|---|---|---|---|---|---|---|---|---|---|---|---|---|---|---|---|---|---|---|---|
| 160/90 | 80.107.1690.31 | 280/160, 160/90 SDR33/11 | 33 | 0 | 0 | 11 | 0 | 0 | 100 | 0 | 0 | 8,6 | 0 | 0 | 14,6 | 0 | 0 | 4,9 | 0 | 0 | 8,2 | 0 | 0 | 280 | 0 | 0 | 160 | 0 | 0 | 160 | 0 | 0 | 90 | 0 | 0 | 1.620 |
| 200/160 | 80.107.2016.31 | 315/200, 280/160 SDR33/11 | 33 | 0 | 0 | 11 | 0 | 0 | 107 | 0 | 0 | 9,7 | 0 | 0 | 18,2 | 0 | 0 | 8,6 | 0 | 0 | 14,6 | 0 | 0 | 315 | 0 | 0 | 200 | 0 | 0 | 280 | 0 | 0 | 160 | 0 | 0 | 2.310 |
| 250/200 | 80.107.2520.31 | 355/250, 315/200 SDR33/11 | 33 | 0 | 0 | 11 | 0 | 0 | 97 | 0 | 0 | 10,9 | 0 | 0 | 22,7 | 0 | 0 | 9,7 | 0 | 0 | 18,2 | 0 | 0 | 355 | 0 | 0 | 250 | 0 | 0 | 315 | 0 | 0 | 200 | 0 | 0 | 2.450 |
| 250/160 | 80.107.2516.31 | 355/250, 280/160 SDR33/11 | 33 | 0 | 0 | 11 | 0 | 0 | 97 | 0 | 0 | 10,9 | 0 | 0 | 22,7 | 0 | 0 | 8,6 | 0 | 0 | 14,6 | 0 | 0 | 355 | 0 | 0 | 250 | 0 | 0 | 280 | 0 | 0 | 160 | 0 | 0 | 2.640 |